Castell

Castell – 2025

Situado en la Plaza del Mercadal, en del centro histórico de Reus.

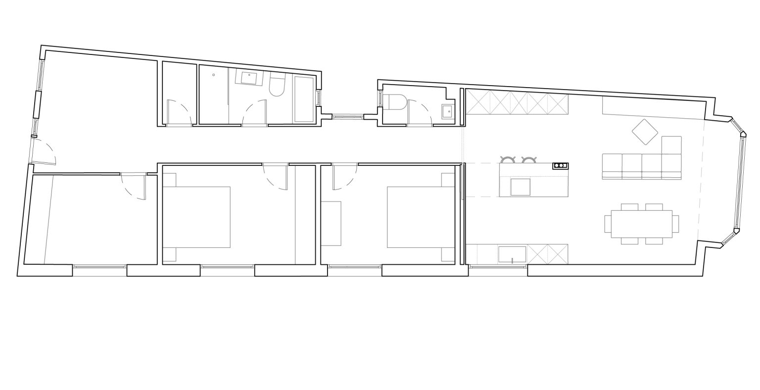
Teniendo como objetivo principal crear espacios más diáfanos de circulación fluida, se proyectó una nueva distribución para dejar atrás la elevada compartimentación de los espacios.

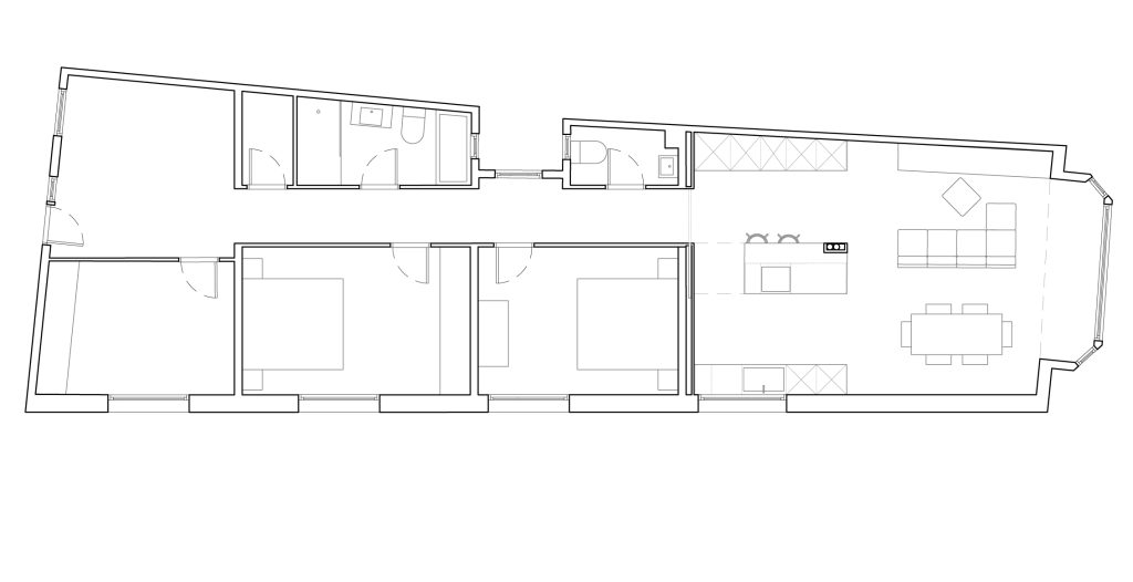
Para separar la zona diurna de la nocturna se diseñó una puerta corredera de roble, hecha a medida, para integrarse totalmente al espacio.

Con el uso del roble natural en diversos parámetros interiores, se busca la calidez y el confort para esta primera residencia en el centro de Reus.

Autor APCA Taller | Interiorismo Cristina Pinyol | Ubicación Reus | Año 2025 | Superficie 100 m²

¡Hola!

Cuéntanos tu idea, te acompañaremos a realizarla

A problem was detected in the following Form. Submitting it could result in errors. Please contact the site administrator.